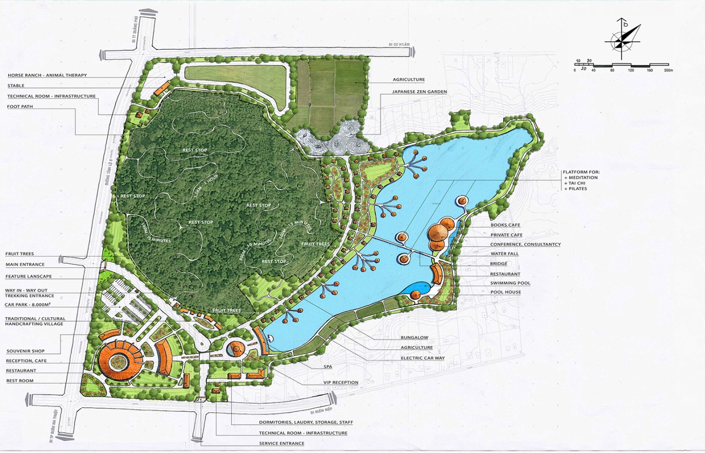
KHU DU LỊCH SINH THÁI ĐỒI CƯ H’LÂM

 

- Chủ đầu tư: Công ty TNHH Đầu Tư Du Lịch Đặng Lê
- Vị trí: Tỉnh Daklak
- Quy mô: 517,000 m2 
- Dịch vụ: Quy hoạch đô thị 1/500
- Năm thiết kế: 2015

 

KHU DU LỊCH SINH THÁI ĐỒI CƯ H’LÂM
KHU DU LỊCH SINH THÁI ĐỒI CƯ H’LÂM
KHU DU LỊCH SINH THÁI ĐỒI CƯ H’LÂM
KHU DU LỊCH SINH THÁI ĐỒI CƯ H’LÂM
KHU DU LỊCH SINH THÁI ĐỒI CƯ H’LÂM